Pour faire une demande de devis, remplissez votre panier et cliquez sur le bouton 'Demander un devis'
-
Accessoires de levage
- Accessoires pour câbles métalliques
-
Anneaux de Levage
-
Anneaux de levage à visser
- Anneaux de levage à visser fixes
-
Nos anneaux de levage à visser articulés
- Anneaux de levage articulés à visser
- Anneaux de levage rotatifs à visser
- RUD PowerPoint Star PP-S / PP-B / PP-VIP - Anneau de levage articulé à visser double roulement
- Anneaux émerillon à visser
- Anneaux de levage articulé à visser
- Accessoires anneaux articulés RUD
- Anneaux de levage articulés CODIPRO
- Anneaux de levage à souder
- Anneaux de levage fixations rapides autobloquants
- Anneaux de levage INOX
-
Anneaux de levage à visser
- Câbles, Chaînes, Cordages, Sangles, Sandows
- Chariots porte palan, griffes sur poutrelle
- Crics hydrauliques, Vérins hydrauliques, Presses d'atelier
-
Crochets, Mailles de tête, Jonctions
- Crochets à émerillon
-
Crochets et accessoires pour élingues chaînes et câbles
- Crochets et accessoires GRADE 80
- Crochets et accessoires RUD ICE GRADE 120
- Crochets et accessoires INOX GRADE 50
- Crochets et accessoires KUPLEX 8+10 GRADE 100
- Crochets et accessoires RUD VIP GRADE 100
- Crochets coulissants, Crochets à tige, Crochets pour fûts
- Crochets et accessoires GRADE 120
- Crochets et accessoires Crosby PLATINUM GRADE 100
- Crochets et accessoires pour élingues textiles
- Crochets pour coins ISO de conteneurs
- Crochets de godet à souder et à visser
- Crochets pour levage de tourets
- Crochets et accessoires pour bennes
- Crochets 'S' H.R.
- Crochets de palans DIN 15401 & DIN 15402
- Pièces détachées - Accessoires de levage
- Crochets divers : ouverture à distance, treillis soudés, crochet de boucher
- Têtes d'équilibrage
- Douilles et ancres pour éléments préfabriqués
- Dynamomètres, Mesure d'efforts
-
Elingues câble, Elingues chaîne, Elingues textiles
- Elingues en câble acier galva et inox
-
Élingues chaîne acier et inox
- Elingues chaîne GRADE 80
- Elingues chaîne GRADE 100 Crosby PLATINUM
- Elingues chaîne RUD ICE 120
- Elingues chaîne GRADE 120
- Elingues chaîne INOX AISI 316L GRADE 50
- Elingues chaîne RUD MINILIFTER Ø 4 mm
- Protections pour élingues en chaîne
- Elingues chaîne RUD VIP MAXI pour charge lourdes de 31,5 t à 126 t
- Elingues chaîne TP lève-buses & lève-tuyaux
- Elingues textiles rondes sans fin
- Elingues textiles avec crochet(s) à 1, 2, 3 et 4 brins
- Élingues textiles en sangle plate
- Elingues pour charges abrasives et/ou coupantes
- Elingues en corde
- Plaquettes d'identification
- Elingues chaîne textile Green Pin Tycan®
- Equilibreurs de charges
- Grues d'atelier, Accessoires de levage
- Levage magnétique - Porteurs et outils magnétiques
- Lève palettes à fourches
- Manilles de levage
-
Matériel pour la pose de câbles
- Brins rigides d'aiguillage pour la pose de câble dans les conduites
- Dérouleurs de bobines de câble - Accessoires de levage
- Vérins de levage et axes de bobine
- Tire-câble acier et polyamide
- Accessoires pour pose de câbles
- Galets de déroulage
- Crochets pour bobines de câble
- Emerillons de tirage
- Pinces et outils pour couvercles
- Pinces tire-câble.
- Tirage de plomb
- Mousqueton, Goupille, Chape mâle, Chape à souder, Etrier pour tube, Queue de cochon, Chape de tringlerie, Maillons rapides
- Palans électriques
- Palans manuels
- Palans pneumatiques
- Palonniers et étriers pour chariots élévateurs, Eperons sur tablier
- Palonniers : monopoutre / en H fixes ou réglables, écarteurs, retourneurs
-
Pinces et Cés de levage
- Pinces de levage pour tôles et ensembles mécanosoudés
- Pinces de levage à mors non marquants
- Pinces de levage pour produits béton et pierres
- Pinces pour levage de fûts métalliques et plastiques
- Cés de levage
- Elingues chaîne TP lève-buses, lève-tuyaux
- Pinces pour charges à faces parallèles
- Pinces de levage pour applications navales
- Ponts roulants - Accessoires de levage
- Portiques d'atelier & Trépieds acier / aluminium
- Potences murales et sur colonne, Potences pour traitement des eaux
- Poulies, Réas, Moufles
- Treuils manuels, Treuils électriques, Treuils pneumatiques, Treuils thermiques - Accessoires de levage
-
Arrimage
- Accessoires d'arrimage : enrouleurs, tourets, perches
- Anneaux d'arrimage à souder
- Arrimage à usage unique
- Arrimage en chaîne
-
Arrimage en Sangle
- Arrimage POIDS LOURDS en sangle de 50 mm - LC 2000 daN
- Arrimage poids lourds en sangle de 50 mm - LC 2500 daN
- Arrimage POIDS LOURDS 'SPANSET' en sangle de 50 mm - LC 2500 daN - Avec indicateur de pré-tension TFI
- Arrimage PORTE ENGINS en sangle de 75 mm - LC 5000 daN
- Arrimage ARTISANS en sangle de 35 mm
- Arrimage LOISIR / TOURISME en sangle de 25 mm
- Arrimage INTERIEUR VEHICULE en sangle de 45 mm
- Arrimage de ROUE en sangle de 50 mm
- Arrimage INOX spécial MARITIME en sangle de 25, 35 et 50 mm
- Arrimage CHAPITEAUX en sangle de 50 mm
- Arrimage CERCLAGE en sangle de 20 mm
- Arrimage BAS DE RIDEAU en sangle de 47 mm
- Sangles polyester
- Arrimage de rampe
- Arrimage auto-rétractable
- Attelage / Remorquage
- Barres d'arrimage et Rails
- Filets, Big Bag
- Protection de la sangle et du chargement
- Sandow
-
Manutention au sol
- Accessoires pour chariots élévateurs
-
Chariots
- Chariots à dossier rabattable
- Chariots à dossier fixe
- Chariots modulaires
- Chariots pour charges longues
- Chariots pour charges lourdes
- Chariots à 1 essieu directeur
- Chariots conteneurs
- Chariots porte outils
- Chariots porte panneaux
- Chariots porte baies
- Racks à panneaux
- Plateaux et rouleurs
- Chariots porte chaises et porte tables
- Chariot de stockage et de transfert
- Chariots pour bacs
- Plateformes roulantes & timons
- Chariots porte meubles
- Convoyeurs
-
Diables
- Diables aluminium 50 kg à 250 kg
- Diables à poignées cintrées 200 kg
- Diables pour charges hautes 250 kg
- Diables à tablier droit 250 kg
- Diables à tablier incurvé 250 kg
- Diables hauts à poignées fermées 300 kg
- Diables pour charges lourdes et encombrantes 500 kg
- Diables tout terrain 300 kg et 500 kg
- Diable à basculement assisté 250 kg
- Diable spécial transporteurs 350 kg
- Diables chariots 250 kg et 350 kg
- Diable à pneus
- Diables porte panneaux
- Diable pliable format A3 et A4
- Diable porte poubelle et porte bouteille gaz ménager
- Diables élévateurs 150 kg à 250 kg
- Diables porte bouteille 80 kg à 250 kg
- Diables à fûts
- Diable porte chaises empilables
- Diables électriques motorisés monte-escaliers aluminium à chenilles
- Diables électriques motorisés monte-escaliers aluminium à roue motrice
- Gamme INOX
- Gerbeurs
-
Manutention des fûts
- Pinces pour fûts métalliques et plastiques
- Basculeurs et Retourneurs de fûts
- Diables universels pour fûts métalliques et plastiques 250 kg et 350 kg
- Diables et chariots dépalettiseurs
- Rouleurs pour fûts
- Chantiers pour fûts métalliques et plastiques 60L à 220L
- Transvaseur pour jerricans
- Fourreaux pour pince à fûts
- Patins rouleurs et Coins roulants
- Remorques
- Roues et Roulettes
- Servantes
- Tables élévatrices
- Transpalettes
-
Protection antichute
- Accessoires pour travaux sur corde
- Antichutes à rappel automatique
- Antichutes sur corde
- Connecteurs EN 362 (mousquetons)
- Cordages d'assurage
- Harnais d'antichute
- Kits Harnais
- Lignes de vie permanentes et provisoires
- Longes
- Matériel d'intervention pour évacuation de personnes
- Points d'ancrage fixes et mobiles
- Sacs et coffres de rangement EPI
- Tensiomètre pour câble, Testeur de points d'ancrage
- Antichutes de charge
-
Equipement industriel
- Accès en hauteur
- Béquilles de remorque, Chandelles, Cales de roue
- Butoirs de protection, Défense de quai Delta
- Cloisons PVC
- Couverture de fosse en aluminium
-
Environnement/Stockage
-
Rétention
- Supports de soutirage
- Palettes pour fûts métalliques
- Chariots de rétention 1 et 2 fûts
- Plateaux de récupération
- Bacs de rétention galvanisés manutentionnables à vide
- Bacs de rétention galvanisés manutentionnables chargés
- Bacs pour transicuves 1000 L
- Bacs de rétention en PEHD 100 L à 1000 L
- Plateformes de rétention 60 L et 120 L
- Bennes/Collecteurs de déchets
- Armoires et Boxes de stockage
-
Rétention
- Hayons en aluminium, articulés sur charnière
- Passages de câbles & de tuyaux
- Patins de calage pour stabilisateurs de grues et nacelles
- Plaques de protection des sols pour engins
- Ponts de chargement aluminium et acier
- Ralentisseurs pour voies privées
-
Rampes de chargement aluminium
- AVS 80 à AVS 200 - Rampes en aluminium pour pneumatiques et chenilles CAOUTCHOUC
- AVSS 150 à AVSS 200 - Rampes en aluminium RENFORCEES pour roues à bandages & chenilles ACIER
- VFR 105 / VFR 120 / VFR 134 - Rampes en aluminium pour PORTE-ENGINS
- AVS 150 - Rampes en aluminium spéciales BENNES AU SOL et trottoirs
- RLK / RRK / RRD / RAS - Rampes repliables en aluminium pour fourgons
- ABS / RAS / AOG / AOH - Rails de chargement aluminium pour V.U.L.
- AOS / AWR / AOL-R / AVS pour diables - Rampes aluminium pour roulettes & pneumatiques
- SB / SBK / BTR / SKR - Rampes d'accés / Passage d’obstacles
- Rehausses et Pentes de chargement
- Architecture par câbles inox - garde-corps
- Accueil /
- Accessoires de levage /
- Potences murales et sur colonne, Potences pour traitement des eaux /
- Potences sur colonne /
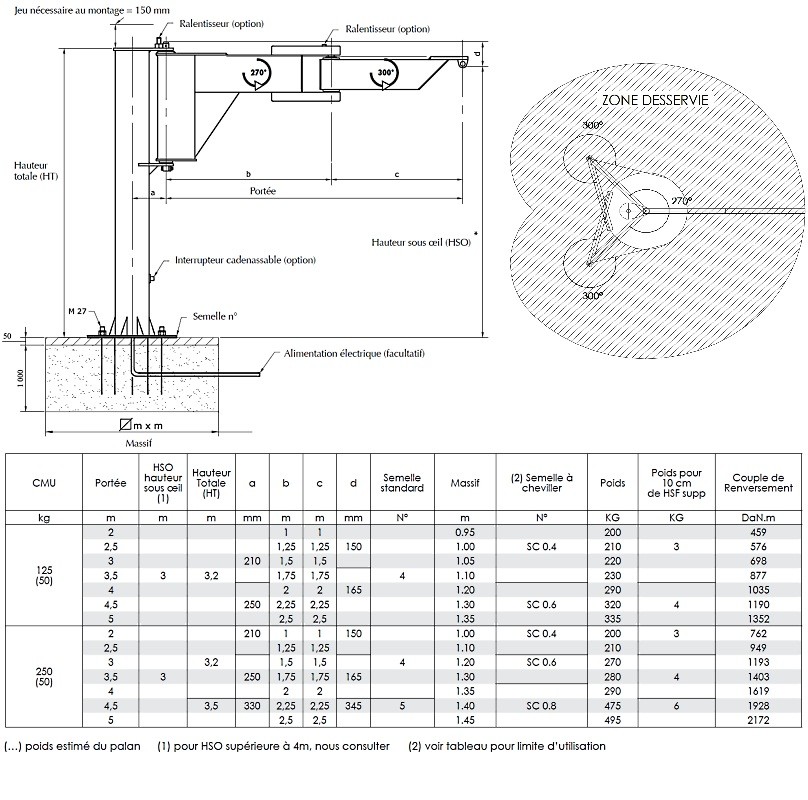
- Potence sur colonne à rotation 180° + 300° PFA avec flèche articulée - Capacité 0,125 t et 0,25 t
Du lundi au vendredi de 8h00 à 12h00 et de 13h30 à 17h30 (sauf le vendredi 17h00)
1. Objet
Cette politique présente la manière dont nous ("ROUX SAS") traitons les Données à Caractère Personnel ("données personnelles") que nous recueillons et que vous nous fournissez. Elle s’applique à l’ensemble des données personnelles vous concernant collectées dans le cadre de nos relations. Nous vous invitons à lire attentivement le présent document pour connaître et comprendre nos pratiques à cet égard.
2. Qui sommes-nous ?
ROUX solutionlevage fabrique et distribue des accessoires de levage en France Europe. Notre siège est situé au 6 rue Jean-Baptiste Corot, Zone de Morlon, 26800 Portes les Valence.
Dans le cadre de nos activités, nous sommes amenés à traiter des données personnelles vous concernant en toute conformité avec la règlementation applicable et notamment le Règlement Européen n° 2016/679 du 27 avril 2016 relatif à la protection des personnes physiques (ou "RGPD"), ainsi que la loi du 6 janvier 1978 modifiée relative à l'informatique, aux fichiers et aux libertés (ou "Loi Informatique et Libertés").
3. Quels sont nos engagements ?
Nous nous engageons à mettre en place l’ensemble des mesures techniques et organisationnelles nécessaires pour assurer le respect des principes fondamentaux en matière de collecte et Traitement de données personnelles et notamment les principes de :
I. licéité, loyauté, transparence : les données personnelles sont traitées de manière licite, loyale et transparente ;
II. limitation des finalités : les données personnelles sont traitées pour des finalités déterminées, explicites et légitimes, et ne sont pas traitées ultérieurement d'une manière incompatible avec les finalités initiales ;
III. proportionnalité des données : les données personnelles collectées sont adéquates, pertinentes et limitées à ce qui est nécessaire au regard des finalités de Traitement ;
IV. exactitude des données : les données personnelles sont exactes et tenues à jour. Toutes les mesures raisonnables sont prises pour que les données inexactes ou obsolètes soient effacées ou rectifiées, eu égard aux finalités de Traitement.
4. Comment collectons-nous vos Données à Caractère Personnel ?
Tout au long de nos relations, vous pouvez être amené à nous transmettre vos données personnelles par différents moyens :
I. lors de la création de votre compte client ;
II. lors de vos achats en ligne, notamment lorsque vous remplissez nos formulaires de commande ;
III. lorsque vous contactez notre service après-vente, effectuez une réclamation ou plus généralement, lorsque vous entrez en relation avec nos équipes de relations clientèle ;
IV. lors d’une souscription à la newsletter ou de votre participation à des études marketing ou à un jeu-concours ;
V. lorsque vous déposez une candidature dans la section "Recrutement" ;
VI. et de manière plus générale, lors de tout autre contact direct avec nos équipes.
Nous pouvons également être amenés à collecter des données personnelles par l’intermédiaire de Partenaires auxquels vous avez préalablement donné votre Consentement pour être contacté par nos soins. Dans ce cadre, seules les données pour lesquelles vous avez fourni un Consentement explicite à leur utilisation par un partenaire seront utilisées.
Lorsque vous naviguez sur notre site Internet, nous sommes également susceptibles d'utiliser des cookies, petits fichiers textes qui sont enregistrés sur votre appareil (ordinateur, tablette ou mobile). Ces cookies nous permettent de collecter des informations et données personnelles pour différentes finalités (statistiques de fréquentation et d’utilisation du site, adaptation du site internet à vos paramètres, cookies tiers à des fins publicitaires, etc.).
Dans le cadre de la gestion des cookies, nous nous engageons également à respecter la règlementation relative à la protection des données. Ainsi, lorsque cela est requis, le Consentement aux cookies sera collecté via le bandeau cookie qui apparaitra de manière claire et visible lors de votre première visite sur le site de l’entreprise.
Vous pouvez à tout instant régler les paramétrages relatifs aux cookies.
5. A quoi nous servent vos données personnelles ? (Finalités de Traitement)
Vos données personnelles sont principalement utilisées pour organiser au mieux notre relation commerciale et nous permettre notamment de vous délivrer un meilleur service de qualité.
Dans ce cadre, vos données personnelles sont traitées pour les principales finalités suivantes :
I. La gestion de la relation commerciale :
- L’utilisation et la gestion de votre compte client ;
- L’achat de produits par le biais de notre site Internet ;
- Le suivi des commandes ;
- La gestion du service après-vente et des réclamations ;
- La gestion des demandes de droit d’accès, de rectification et d’opposition ;
- La réalisation d’études statistiques pour connaître l’utilisation et les performances de notre site Internet ;
- La réalisation d’études marketing, ainsi que des sondages et test produits ;
- L’élaboration de profil personnalisé permettant de mieux vous connaître, de vous fidéliser, et d’améliorer par la même notre service (Profilage) ;
II. La réalisation d’opérations permettant de nous promouvoir auprès de prospects (prospection commerciale) :
- La réalisation d’opérations de sollicitations commerciale ;
- L’élaboration de statistiques commerciales ;
- L’organisation de jeux-concours et/ou d’opérations de fidélisation ;
- La gestion des avis des personnes sur des produits, services ou contenus ;
III. La protection de nos intérêts :
- La gestion de la fraude,
- La gestion des impayés,
- La gestion des contentieux,
- Le suivi des opérations de recouvrement ;
- La gestion de notre conformité aux différentes obligations légales applicables.
IV. La gestion de nos fournisseurs et de la logistique (livraisons)
6. Traitons-nous l’intégralité des données personnelles que vous nous fournissez ?
Conformément à nos engagements, nous ne collectons que les données que nous estimons nécessaires à la réalisation de nos activités (principe de minimisation des données).
Certaines données sont toutefois indispensables au traitement de vos demandes et/ou commandes, d'autres nous permettent de mieux vous connaître et donc d’adapter nos offres à vos besoins. Les champs des formulaires de collecte marquées d’un (*) sont à remplir obligatoirement. A défaut, nous ne serons pas en mesure de pouvoir traiter votre demande ou commande ou de vous proposer les offres adaptées à vos besoins.
7. Quelle est la base légale pour le Traitement des données personnelles ?
Le Traitement de vos données personnelles repose sur différentes bases légales déterminées en fonction de la finalité des Traitements concernés. Dans ce cadre, vos données nous sont nécessaires pour :
I. L’exécution d’un engagement contractuel auquel vous êtes partie (ex : gestion de vos commandes, gestion de votre livraison, etc.) ;
II. La poursuite de notre intérêt légitime de Responsable du Traitement (notamment développer la connaissance de nos clients, d’adapter nos offres à vos besoins et/ou mener des activités promotionnelles) ;
III. Le respect d’une obligation légale dès lors que la législation en vigueur impose ledit Traitement des données.
8. Qui peut accéder à vos données personnelles ?
Seules les personnes habilitées au sein de nos équipes peuvent accéder à vos données personnelles, et ce en fonction de leur besoin métier.
Vos données personnelles peuvent également être transmises à d’autres entités du groupe, ainsi qu’à nos partenaires ("Sous-Traitants") dont la prestation est nécessaire à la réalisation de nos activités de Responsable du Traitement. À titre d’exemple, vos données personnelles peuvent être transmises à des prestataires assurant des services d’hébergement et de maintenance informatique, ainsi que les activités de livraison, de gestion de la fraude, etc.
Dans ce cadre, nous nous engageons à faire appel uniquement à des Sous-Traitants qui présentent des garanties suffisantes et respectent nos engagements en matière de protection des données personnelles.
9. Vos données sont–elles transférées à l’étranger ?
Dans certains cas, vos données peuvent également être transférées à nos partenaires agréés situés hors de l’Espace Économique Européen, et ce, dans le respect de la règlementation applicable.
Plus généralement, lorsque vos données sont transférées à un Destinataire situé hors de l’Espace économique européen, nous nous engageons à mettre en œuvre un mécanisme de protection approprié, au cas par cas, afin de garantir la protection et la sécurité de vos Données Personnelles selon les règles les plus strictes et en vertu de ses engagements de Responsable du Traitement. Vous pouvez demander et recevoir une copie desdites garanties à l’adresse indiquée ci-dessous indiquée dans la rubrique "Comment exercer mes droits ?".
10. Combien de temps vos données personnelles sont-elles conservées ?
Les données personnelles sont conservées uniquement pendant la période nécessaire à l’accomplissement des finalités décrites dans la rubrique "A quoi servent vos données personnelles ?". De plus, nous conservons vos données personnelles conformément aux durées de conservation imposées par la règlementation applicable en vigueur et/ou les bonnes pratiques de l’industrie.
Ces durées de conservation sont définies en fonction de la nature des finalités de Traitement et tiennent notamment compte des dispositions légales applicables imposant une durée de conservation précise pour certaines catégories de données, des délais de prescription applicables ainsi que des recommandations des Autorités de contrôle locales concernant certaines catégories de Traitements de données.
A titre d’illustration, nous nous engageons à conserver vos données personnelles, en tant que client, uniquement pendant la durée strictement nécessaire à la gestion de la relation commerciale à savoir pendant un délai de trois ans à compter de la fin de la relation commerciale (et ce, exception faite des obligations légales du Responsable du Traitement exigeant une durée de conservation plus longue), par exemple, à compter d'un achat, de la date d'expiration d'une garantie, du terme d'un contrat de prestations de services ou du dernier contact émanant du client.
Les données personnelles vous concernant en tant que prospect non client sont quant à elles conservées pendant un délai de trois ans à compter de leur collecte ou de votre dernière prise de contact avec nos services (par exemple, une demande de documentation ou un clic sur un lien hypertexte contenu dans un courriel).
11. Vos données sont-elles sécurisées ?
Nous accordons une vigilance particulière à la confidentialité et la sécurité de vos données personnelles.
Dans ce cadre, nous mettons en œuvre des mesures techniques et organisationnelles appropriées afin de garantir un niveau de sécurité adapté et conforme aux bonnes pratiques de l’industrie. Nous répondons ainsi aux exigences règlementaires et protégeons les droits et les données des personnes concernées dès la conception des opérations de Traitement.
Notre plateforme de e-Commerce bénéficie de mesures de sécurité renforcées telles que l’utilisation de protocoles de chiffrement robustes, la protection d’un pare-feu applicatif, une supervision permanente et des audits externes réguliers. Enfin, votre mot de passe associé à votre compte est stocké chiffré dans nos bases le rendant ainsi inaccessible par toute autre personne que vous.
12. Quels sont vos droits en matière de données personnelles ?
En application de la réglementation applicable en matière de protection des données, vous pouvez à tout moment exercer vos droits en tant que personne concernée ; et solliciter l'accès, la rectification, l’effacement et la portabilité des données vous concernant ainsi qu’exercer vos droits de limitation et d’opposition au Traitement de ces données.
Notamment, vous disposez d’un droit d’opposition au Traitement de vos données à des fins de prospection commerciale. En fonction de vos choix émis lors de la création ou modification de votre compte, vous serez en effet susceptibles de recevoir des offres de la part de notre société. Ces choix peuvent être modifiés à tout moment une fois authentifié sur votre compte en ligne.
De même, si vous ne souhaitez plus recevoir notre newsletter, vous pouvez cliquer sur le lien de désinscription situé en bas de chaque communication publicitaire sous format électronique.
13. Comment exercer vos droits ?
Ces droits peuvent être exercés en vous adressant à : ROUX SAS, Département Juridique, 6 rue Jean-Baptiste Corot, Zone de Morlon, 26802 Portes les Valence, ou par e-mail à l'adresse direction@solutionlevage.com.
Dans ce cadre, nous vous prions de bien vouloir accompagner votre demande des éléments nécessaires à votre identification (nom, prénom, email) et d’un titre d’identité ainsi que de toute information relative à votre demande.
Vous disposez également d'un droit de recours auprès de l’Autorité de Contrôle locale en cas de violation de la réglementation applicable en matière de protection des données personnelles et notamment du RGPD.
14. Qui contacter ?
Pour toute question complémentaire relative à cette politique ou à la manière dont nous traitons vos données personnelles, nous vous invitons à nous contacter à l’adresse suivante : direction@solutionlevage.com.
15. Modifications et mises à jour
Cette politique de confidentialité peut être modifiée ou mise à jour, au regard des différentes interprétations, décisions et opinions relatives au RGPD. Nous nous engageons à vous signaler par le biais de notre site Internet toute modification effectuée.
16. Glossaire
I. "Données à Caractère Personnel" ou " Données Personnelles ", toute information se rapportant à une personne physique identifiée ou identifiable (ci-après dénommée "personne concernée") ; est réputée être une "personne physique identifiable" une personne physique qui peut être identifiée, directement ou indirectement, notamment par référence à un identifiant, tel qu'un nom, un numéro d'identification, des données de localisation, un identifiant en ligne, ou à un ou plusieurs éléments spécifiques propres à son identité physique, physiologique, génétique, psychique, économique, culturelle ou sociale ;
II. "Traitement", toute opération ou tout ensemble d'opérations effectuées ou non à l'aide de procédés automatisés et appliquées à des données ou des ensembles de Données à Caractère Personnel, telles que la collecte, l'enregistrement, l'organisation, la structuration, la conservation, l'adaptation ou la modification, l'extraction, la consultation, l'utilisation, la communication par transmission, la diffusion ou toute autre forme de mise à disposition, le rapprochement ou l'interconnexion, la limitation, l'effacement ou la destruction ;
III. "Profilage", toute forme de Traitement automatisé de Données à Caractère Personnel consistant à utiliser ces Données à Caractère Personnel pour évaluer certains aspects personnels relatifs à une personne physique, notamment pour analyser ou prédire des éléments concernant le rendement au travail, la situation économique, la santé, les préférences personnelles, les intérêts, la fiabilité, le comportement, la localisation ou les déplacements de cette personne physique ;
IV. "Responsable du Traitement", la personne physique ou morale, l'autorité publique, le service ou un autre organisme qui, seul ou conjointement avec d'autres, détermine les finalités et les moyens du Traitement; lorsque les finalités et les moyens de ce Traitement sont déterminés par le droit de l'Union ou le droit d'un État membre, le Responsable du Traitement peut être désigné ou les critères spécifiques applicables à sa désignation peuvent être prévus par le droit de l'Union ou par le droit d'un État membre ;
V. "Sous-Traitant", la personne physique ou morale, l'autorité publique, le service ou un autre organisme qui traite des Données à Caractère Personnel pour le compte du Responsable du Traitement ;
VI. "Destinataire", la personne physique ou morale, l'autorité publique, le service ou tout autre organisme qui reçoit communication de Données à Caractère Personnel, qu'il s'agisse ou non d'un Tiers. Toutefois, les autorités publiques qui sont susceptibles de recevoir communication de Données à Caractère Personnel dans le cadre d'une mission d'enquête particulière conformément au droit de l'Union ou au droit d'un État membre ne sont pas considérées comme des Destinataires ; le Traitement de ces données par les autorités publiques en question est conforme aux règles applicables en matière de protection des données en fonction des finalités du Traitement ;
VII. "Partenaire", une personne physique ou morale, une autorité publique, un service ou un organisme autre que la personne concernée, le Responsable du Traitement, le Sous-Traitant et les personnes qui, placées sous l'autorité directe du Responsable du Traitement ou du Sous-Traitant, sont autorisées à traiter les Données à Caractère Personnel ;
VIII. "Consentement" de la personne concernée, toute manifestation de volonté, libre, spécifique, éclairée et univoque par laquelle la personne concernée accepte, par une déclaration ou par un acte positif clair, que des Données à Caractère Personnel la concernant fassent l'objet d'un Traitement ;
IX. "Autorité de Contrôle", une autorité publique indépendante qui est instituée par un État membre ;
